單段錘式破碎機——引礦山碎石行業發展
單段錘式破碎機——引礦山碎石行業發展
單段錘式破碎機憑借產量高、破碎機比大、性價比高的對性優勢,在當今礦山資源整合中發揮了重要作用,從而也引礦山碎石行業朝著大型化、智能化發向發展。詳細解答
詳細解答
近些年家大力整合礦山資源,一些不合乎規范的、小型的石料廠陸續關停,石料行業陸續向大型化、智能化方向發展,這就對礦山生產設備有了更高要求。
中譽鼎力順應行業需求,在傳統破碎設備基礎上進行改進,研發單段錘式破碎機,具有結構簡單、產量高、破碎比大、出料粒形好等優點。由于設備適用范圍廣泛,又被用于冶煉、建材、公路、鐵路等眾多部門物料的破碎作業。

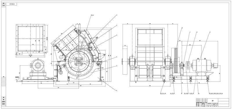
鼎力單段錘式破碎機工作原理
錘式破碎機主要是靠沖擊能來完成破碎物料作業的。錘式破碎機工作時,電機帶動轉子作高速旋轉,物料均勻的進入破碎機腔中,高速回轉的錘頭沖擊、剪切、撕裂物料致物料被破碎,同時,物料自身的重力作用使物料從高速旋轉的錘頭沖向架體內擋板、篩條,在轉子下部,設有篩板、粉碎物料中小于篩孔尺寸的粒級通過篩板排出,大于篩孔尺寸的物料阻留在篩板上繼續受到錘子的打擊和研磨,直到破碎至所需出料粒度后通過篩板排出機外。

影響單段錘式破碎機價格的因素
1. 鋼材價格。眾所周知,單段錘式破碎機的主要鑄造材質是鋼性材質,因而,鋼材的價格就直接影響著復合式破碎機的價格。若我內的鋼材價格處于逐漸上漲的趨勢,從而也就導致機器設備價格上漲嚴重,反之,就會破碎設備就會出現下跌的情況。
2. 產品質量。好的產品質量可以為消費者創造可觀的經濟利益,也會為生產廠家樹立的經濟效益,因此質量好的破碎機自然價格較貴,所以產品質量影響破碎設備的價格。
3. 市場行情。市場的供應關系也會影響設備價格,當市場上提供的破碎設備大于實際的需要時,就會出現價格下跌的現象,反之價格上漲。近年來,我礦山、冶煉、建筑、公路、鐵路、水利和化工等部分的行業對破碎機的需求量急劇增加。所以,有的生產廠家為追求利益的化,抬高了設備價格。
4. 后,設備還會受到地域、人為、季節等因素的影響,這些雖然不能對破碎機價格造成嚴重的影響,但是還是會能對設備的價格造成的波動。

















